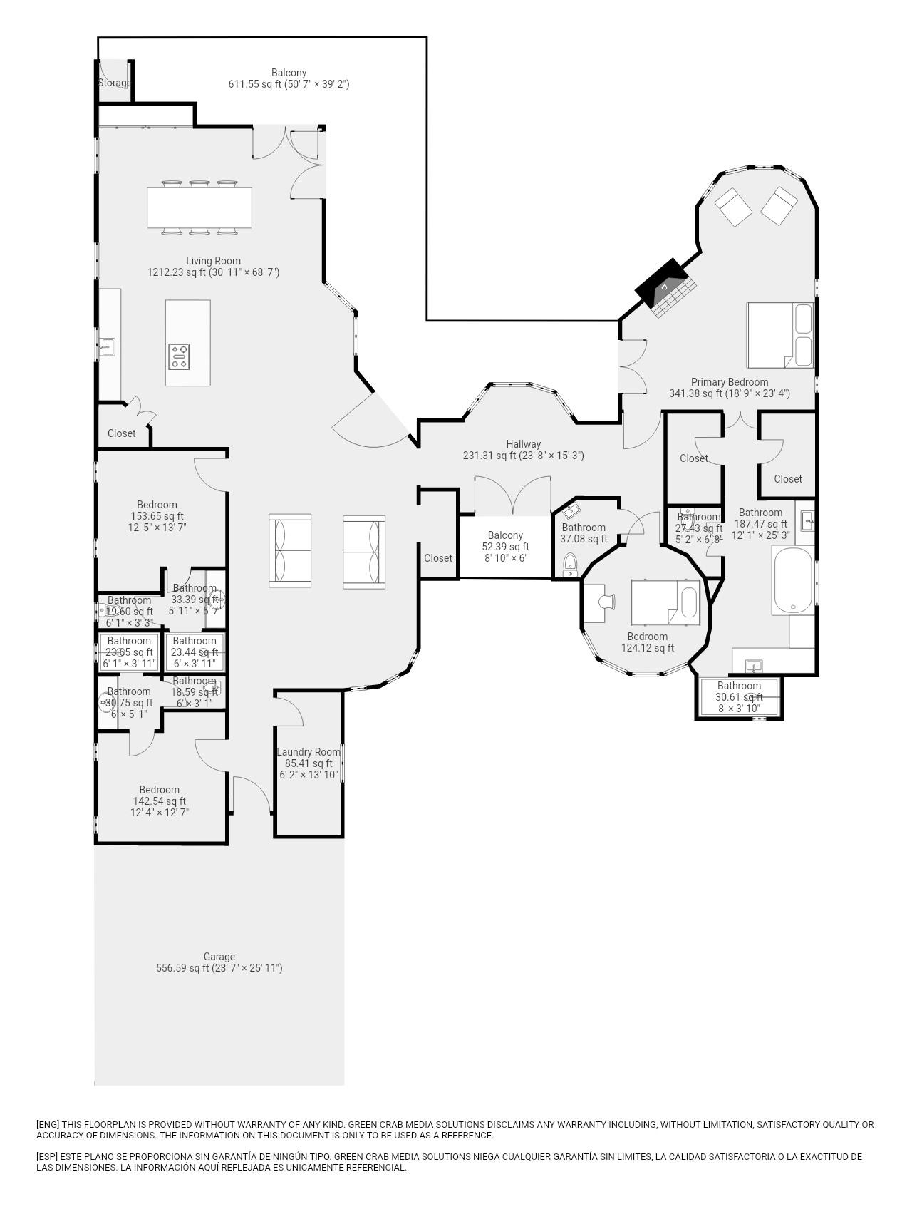
Nestled in the prestigious Valle Escondido community, this elegant 3-bedroom, 3.5-bath home offers luxury and convenience just minutes from Boquete’s vibrant town center and the new synagogue. Bright and airy, the open-concept design features high-end finishes, custom cabinetry, and furnished interiors ready for move-in. The spacious primary suite includes two walk-in closets and a spa-like bath, while a dedicated office with fiber-optic internet makes working from home seamless. Outdoors, a wraparound patio invites relaxation and entertaining with views of lush gardens, mature fruit trees, and a charming greenhouse. A whole-house generator, secure double-gated entry, and Valle Escondido’s 24-hour security provide peace of mind. Additional features include a separate bodega with its own bathroom. This turnkey residence is the perfect blend of style, comfort, and location in one of Boquete’s most desirable neighborhoods.
"All our properties come with the option to obtain legal residency in Panama through our main law firm, Expat-Tations, as an integrated service.
Immerse yourself in the captivating ambiance of our properties. Book a personalized tour to explore the exquisite beauty and unique features of our property.
Our knowledgeable staff will guide you through the property, answering any questions you may have.
$189,900
Added: September 12, 2025
$1,490,000
Added: February 1, 2026
$299,000
Added: April 27, 2026
2 Bedroom apartment in PH Gorgona Ocean Front
Owning a home is a keystone of wealth… both financial affluence and emotional security.
Suze OrmanPlease enter the 6-digit OTP sent to your email.
Time remaining: 05:00